Mosina, Głogowa
569 000,00 PLN
Mieszkanie na sprzedaż , 57,81 m2
9 842,59 PLN /m2
Powierzchnia
57,81 m2
Liczba pokoi
3
Rok budowy
2019

Dane nieruchomości:

Numer oferty: 715045
Powierzchnia: 57,81 m2
Liczba pokoi: 3
Piętro/Pięter 2 z 2
Rok budowy: 2019
Cena za m2: 9 842,59 PLN
Cena: 569 000,00 PLN

Opis nieruchomości:

☆ Zapraszam do zapoznania się z ofertą  mieszkania w Mosinie. Nieruchomość posiada balkon i znajduję się na pierwszym piętrze budynku dwulokalowego na spokojnym osiedlu na ul. Głogowej. Budynek oddano do użytkowania w 2018 roku .

☆ Do mieszkania przynależy ogródek o pow. ok 70m2, oraz duża wiata garażowa z dwoma miejscami parkingowymi.
Na parterze jest znajduje się część wspólna z wejściem do dwóch mieszkań, następnie korytarz i schody prowadzące na piętro. Na jednym poziomie jest zlokalizowany salon z aneksem kuchennym i dwie sypialnie oraz balkon od południa dzięki czemu mieszkanie jest dobrze doświetlone.

☆ Mieszkanie zostało wykończone w ładnym standardzie, idealna oferta dla osób szukających miejsca nie wymagającego większych nakładów finansowych lub tylko do lekkiego odświeżenia.. Nowoczesne rozwiązania i dbałość o szczegóły tworzą przyjemną atmosferę wewnątrz nieruchomości.
Na podłodze w pokojach panele, w salonie z aneksem kuchennym, korytarzu i łazience - płytki ceramiczne. Schody wykonane z konglomeratu.

☆ Lokal jest bezczynszowy i tani w utrzymaniu. Źródłem ogrzewania jest własny piec gazowy, średnie rachunki za gaz za zeszły rok to ok 400zł za dwa miesiące. 

☆ Wokół osiedla znajduję się zabudowa jednorodzinna oraz tereny zielone wzdłuż Kanału Mosińskiego, idealne lokalizacja na spacery, rowerowe przejażdżki, czy jogging. W zasięgu krótkiego spaceru są sklepy, szkoła podstawowa, żłobek i przedszkola. Do dworca PKP jest ok 20 minut pieszo.

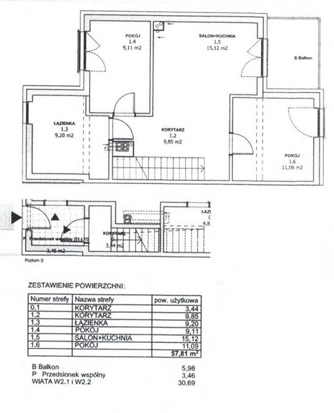
☆ Rozkład pomieszczeń:
Parter:
wspólny przedsionek dla dwóch mieszkań,
wejście do mieszkania, korytarz o pow. 3,44m2
Piętro : 
korytarz  9,85 m2
salon z aneksem kuchennym 15,12m2
sypialnia 11,09m2
sypialnia 9,20m2
łazienka ok 9,20 m2
balkon 

☆ Media:
-woda, prąd, gaz, kanalizacja, światłowód
-piec gazowy dwufunkcyjny, grzejniki 

☆ Standard wykonania budynku:
-ściany nośne Silka
-budynek ocieplony styropianem 15cm
-dachówka cementowa
-okna profil 5-komorowy 
-możliwość zagospodarowania strychu na przestrzeń do przechowywania (w obecnym stanie bez dostępu do strychu)

☆ W najbliższej okolicy:
Szkoła 750m
Dworzec PKP 1,4km
Centrum handlowe  1,6 km
Apteka 1,1km
Przychodnia 1,3km
Przystanek autobusowy 700m

Oferta na wyłączność.
Kupujący nie płaci prowizji.
Przy zakupie pierwszej nieruchomości zakup zwolniony z 2%PCC.
Termin wydania mieszkania do ustalenia.

Kontakt:
Aleksandra Tomczyk
nr tel.: +48 722 398 881
aleksandra@gekkohouse.pl
http://gekkohouse.pl

Powyższa oferta ma charakter informacyjny i nie stanowi oferty handlowej w
rozumieniu art. 66 §1 kodeksu cywilnego oraz innych właściwych przepisów
prawnych.


-






Skontaktuj się z agentem :
Aleksandra Tomczyk

Telefon : 722398881

aleksandra@gekkohouse.pl


Lokalizacja: