Granowo, Kolejowa
370 000,00 PLN
Mieszkanie na sprzedaż , 55,88 m2
6 621,33 PLN /m2
Powierzchnia
55,88 m2
Liczba pokoi
2
Rok budowy
2024

Dane nieruchomości:

Numer oferty: 974484
Powierzchnia: 55,88 m2
Liczba pokoi: 2
Piętro/Pięter 0 z 1
Rok budowy: 2024
Cena za m2: 6 621,33 PLN
Cena: 370 000,00 PLN

Opis nieruchomości:

☆ Zakup Bezpośrednio Od Dewelopera
☆ Faktura, Rękojmia 5 lat, Brak Podatku i Prowizji
☆ Możliwość Wykończenia Pod Klucz
☆ Szybka Decyzja Kredytowa u Naszego Doradcy Kredytowego


zapraszam do kontaktu i umówienia się na prezentację


☆ Paweł           883 124 333


Kontaktując się z nami masz pewność bezpośredniego zakupu domu i dostęp do pełnej informacji o inwestycji


☆ Biuro Sprzedaży Dewelopera zaprasza do zapoznania się z ofertą sprzedaży mieszkania w budynku czterolokalowym 
Mieszkanie  o powierzchni całkowitej 55,88 m2 na parterze z przynależnym ogródkiem

Umiejscowiony przy spokojnej drodze, bardzo blisko pełna infrastruktura miejska: sklepy, przedszkola,
szkoła, przychodnia, apteka
komunikacja miejska w promieniu 350 metrów


☆ Media: prąd, gaz, kanalizacja, woda
☆ Usytuowanie budynku: salon i taras skierowane na południowy zachód

☆ Termin oddania: I kwartał 2025
☆ Umowa przedwstępna: 1%


Mieszkanie lewe na piętrze       51,44 m2 w cenie 350 000 zł
Mieszkanie lewe na parterze     55,88 m2 w cenie 370 000 zł
Mieszkanie prawe na parterze  54,35 m2 w cenie 380 000 zł
Mieszkanie prawe na piętrze     61,60 m2 w cenie 390 000 zł



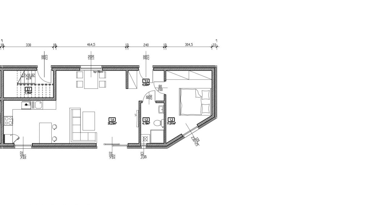
☆ ZESTAWIENIE POMIESZCZEŃ:
budynek 1 lokal 1

Mieszkanie na parterze 

➔ wiatrołap 4,55 m2
➔ sypialnia  11,91 m2
➔ łazienka  4,19 m2
➔ salon z aneksem 35,23 m2

➔ taras + ogródek 



☆ nabywając naszą inwestycje zyskujesz dodatkowo:

➔ bezpłatną pomoc eksperta kredytowego w uzyskaniu najlepszego finansowania
➔ 10% rabatu na zakupy w Leroy Merlin + architekt wnętrz
➔ do 2000 zł premii na zakupy w OBI + architekt wnętrz
➔ projekt kuchni i łazienki w cenie przy zakupach w Leroy Merlin i OBI
➔ 15% rabatu na farby i efekty dekoracyjne do ścian renomowanych firm
➔ 10% rabatu na drzwi, podłogi i panele renomowanych polskich i zagranicznych firm
➔ możliwość wykończenia domu w atrakcyjnych cenach
➔ pomoc naszego architekta wnętrz w promocyjnych cenach



☆ STANDARD WYKONANIA:

Fundamenty Zbrojone
Ściany budynku z porotermu 18 cm ocieplone styropianem 15 cm , tynk zewnętrzny akrylowy
Ściana między lokalami 24 cm silka
Ściany fundamentowe ocieplone 10 cm
Ściany działowe murowane 12 cm
Strop teriva kondygnacja izolowana styropianem 3-5 cm
Poddasze kondygnacji drewniane izolowane wełną mineralną 30 cm zamontowana nida-gips (bez szpachlowania)
Pokrycie dachowe z dachówki betonowej
Okna i drzwi balkonowe trzyszybowe, pięciokomorowe z pcv
Łazienki wyposażone w następujące wyjścia: parter: umywalka, muszla, poddasze: wanna lub prysznic, umywalka, muszla
Wyjście do pralki
Kuchnia wyposażona w wyjścia pod zlewozmywak
Indywidualny System Grzewczy 
Instalacja Elektryczna 230 V w Pokojach i Kuchni p o3-5 gniazd i 1 punkt świetlny
Instalacja antenowa we wszystkich pokojach
instalacja alarmowa
Posadzki cementowe izolowane styropianem 10 cm parter, 3-5 cm pietro
tynki wew maszynowe gipsowe
płot z trzech stron, 
taras z kostki brukowej
rolety zew + elektryczna roleta drzwi tarasowych
przyłączona instalacja kanalizacyjna, ,wodna i elektryczna
teren działki wysprzątany bez nawożenia

powyższy opis ma charakter informacyjny i nie stanowi oferty w rozumieniu przepisów Kodeksu Cywilnego


☆ W ofercie posiadamy również inne inwestycje deweloperskie na terenie Mosiny, Pecnej, Czapur, Krosna, Dymaczewa Nowego/Starego, Borkowic, Stęszewa, Dębna, Komornik, Szreniawy, Lubonia, Plewisk, Wir, Baranowa, Skórzewa, Kobylnik, Rokietnicy, Kiekrza, Dopiewca, Dopiewa, Dąbrówki, Chomęcic, Głuchowa, Konarzewa, Borówca, Szczytnik, Kamionek, Daszewic, Dachowej, Szczepankowa, Siekierek, Paczkowa, Tulcach, Poznania i okolic

Masz własną działkę? Zbudujemy na niej dom Twoich marzeń !!!



Kontakt:
Paweł Tomczyk
nr tel.: +48 8.83 124 333
pawel.tomczyk@gekkohouse.pl
http://gekkohouse.pl

Skontaktuj się z agentem :
Paweł Tomczyk

Telefon : 883124333

pawel.tomczyk@gekkohouse.pl


Lokalizacja: