Wiry,
1 380 000,00 PLN
Dom (Bliźniak) na sprzedaż , 224,34 m2
6 151,38 PLN /m2
Powierzchnia
224,34 m2
Liczba pokoi
6
Rok budowy
2021

Dane nieruchomości:

Numer oferty: 458649
Powierzchnia: 224,34 m2
Powierzchnia działki: 400 m2
Liczba pokoi: 6
Pięter : 1
Rok budowy: 2021
Cena za m2: 6 151,38 PLN
Cena: 1 380 000,00 PLN

Opis nieruchomości:

☆ Zakup Bezpośrednio Od Dewelopera
☆ Faktura, Rękojmia 5 lat, Brak Podatku i Prowizji
☆ Możliwość Wykończenia Pod Klucz
☆ Szybka Decyzja Kredytowa u Naszego Doradcy Kredytowego


zapraszam do kontaktu i umówienia się na prezentację


☆  Paweł            883 124 333
☆  Aleksandra    722 398 881


Kontaktując się z nami masz pewność bezpośredniego zakupu domu i dostęp do pełnej informacji o inwestycji


☆  Biuro Sprzedaży Dewelopera zaprasza  do zapoznania się z naszą nową inwestycją, domu w zabudowie bliźniaczej we Wirach przy granicy z Komornikami  o powierzchni całkowitej 224,34 m2, powierzchnia użytkowa to 185 m2, umiejscowionego na działce o powierzchni 400 m2.
Dom umiejscowiony blisko Wielkopolskiego Parku Narodowego
Ogrzewanie podłogowe cały parter i górne łazienki,


☆  Media: prąd, woda, kanalizacja, gaz, światłowód
☆  Usytuowanie budynku: salon i taras skierowane na południowy wschód, w drugim budynku na północny zachód

☆  Termin oddania: do września 2026
☆  Umowa przedwstępna: 1%


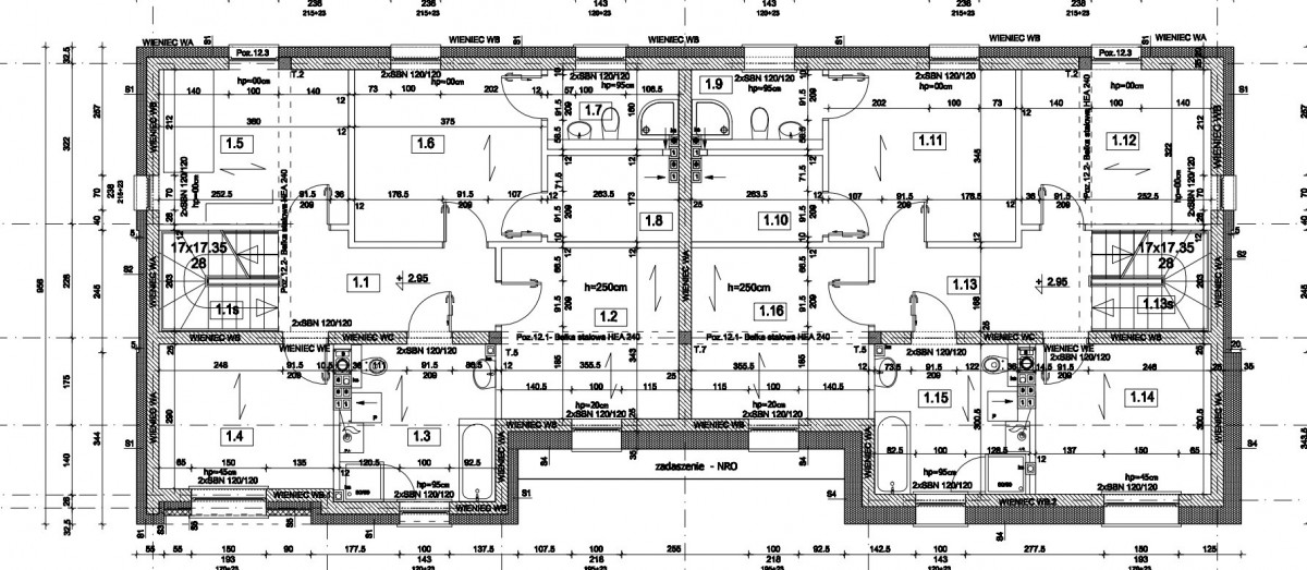
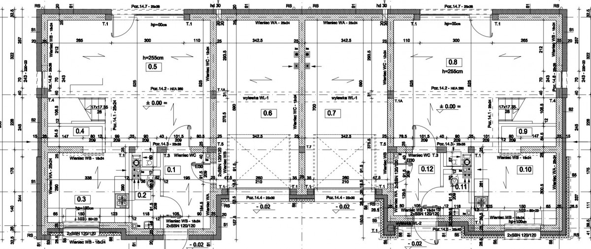
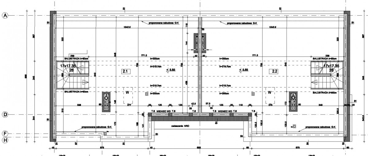
☆  ZESTAWIENIE POMIESZCZEŃ:
budynek 1, lokal 1

PARTER:

➔ wiatrołap 6,10 m2
➔ łazienka 2,80 m2
➔ kuchnia  9,80 m2
➔ spiżarnia  1,90 m2
➔ salon 30,50  m2

➔ garaż 23,90 m2

PIĘTRO:

➔ korytarz  7,80 m2
➔ schody  4,80 m2
➔ łazienka 9,00 m2
➔ pokój 1 12,10 m2
➔ pokój 2 10,10 m2
➔ pokój 3 11,70 m2
➔ pokój 4 12,90 m2
➔ łazienka 4,20 m2
➔ garderoba  4,50 m2

PODDASZE:

➔ pokój  76,94 ( do własnej aranżacji )



☆  nabywając naszą inwestycje zyskujesz dodatkowo:

➔ bezpłatną pomoc eksperta kredytowego w uzyskaniu najlepszego finansowania
➔ 10% rabatu na zakupy w Leroy Merlin + architekt wnętrz
➔ do 2000 zł premii na zakupy w OBI + architekt wnętrz
➔ projekt kuchni i łazienki w cenie przy zakupach w Leroy Merlin i OBI
➔ 15% rabatu na farby i efekty dekoracyjne do ścian renomowanych firm
➔ 10% rabatu na drzwi, podłogi i panele renomowanych polskich i zagranicznych firm
➔ możliwość wykończenia domu w atrakcyjnych cenach
➔ pomoc naszego architekta wnętrz w promocyjnych cenach



☆  STANDARD WYKONANIA:

-powierzchnia domu łącznie z poddaszem oraz garażem ok.185m2
-powierzchnia działki ok 400m2
- pełne media (prąd ,telefon, kanalizacja, woda, internet ,gaz)
-ściany łącznie ze ściankami działowymi wykonane ceramika f-my Wienerberger Poroton
-elewacja zastosowano styropian ok.20-30cm oraz cegłę klinkierową ręcznie formowaną f-my Budmar
-kominy systemowe Plewa
-stropy typu Teriva f-my Konbet
-piec kondensacyjny z zasobnikiem De Dietrich
-więźba zastosowano drewno konstrukcyjne klejone KVH
-ocieplone nakrokwiowo płytami poliuretanowymi f-my Bauder PIR 14
-dach wykonany z blachy na rąbek stojący f-my RUKKI Green Coat CrownBT7021
-okna pakiety trzyszybowe profil Veka 7-mio komorowy Max Premium wyposażone w rolety elektr. sterowane
-drzwi wejściowe KMT model 75 Plus
-bramy garażowe Crispol (elektrycznie sterowane)
-kostka brukowa Libet Via Trio o gr.8cm
-instalacja fotowoltaiczna moc ok.4,5 kWp (panele Full Black,falownik Fronius)
-teren ogrodzony (płoty oraz zabudowa śmietnika wykonane pod indywidualne zamówienie)
-zaprowadzone trawniki
-rozbudowana instalacja elektryczna


powyższy opis ma charakter informacyjny i nie stanowi oferty w rozumieniu przepisów Kodeksu Cywilnego

☆ W ofercie posiadamy również inne inwestycje deweloperskie na terenie Mosiny, Pecnej, Czapur, Krosna, Dymaczewa Nowego/Starego, Borkowic, Stęszewa, Dębna, Komornik, Szreniawy, Lubonia, Plewisk, Wir, Baranowa, Skórzewa, Kobylnik, Rokietnicy, Kiekrza, Dopiewca, Dopiewa, Dąbrówki, Chomęcic, Głuchowa, Konarzewa, Borówca, Szczytnik, Kamionek, Daszewic, Dachowej, Szczepankowa, Siekierek, Paczkowa, Tulcach, Poznania i okolic

Masz własną działkę? Zbudujemy na niej dom Twoich marzeń !!!



Kontakt:
Paweł Tomczyk
nr tel.: +48 883 124 333
pawel.tomczyk@gekkohouse.pl
http://gekkohouse.pl

Skontaktuj się z agentem :
Paweł Tomczyk

Telefon : 883124333

pawel.tomczyk@gekkohouse.pl


Lokalizacja: