Mosina,
649 000,00 PLN
Dom (Szeregowy) na sprzedaż , 85,58 m2
7 583,55 PLN /m2
Powierzchnia
85,58 m2
Liczba pokoi
4
Rok budowy
2024

Dane nieruchomości:

Numer oferty: 398562
Powierzchnia: 85,58 m2
Powierzchnia działki: 140 m2
Liczba pokoi: 4
Pięter : 1
Rok budowy: 2024
Cena za m2: 7 583,55 PLN
Cena: 649 000,00 PLN

Opis nieruchomości:

☆ Zakup Bezpośrednio Od Dewelopera
☆ Faktura, Rękojmia 5 lat, Brak Podatku i Prowizji
☆ Możliwość Wykończenia Pod Klucz
☆ Szybka Decyzja Kredytowa u Naszego Doradcy Kredytowego


zapraszam do kontaktu i umówienia się na prezentację


☆ Aleksandra   722 398 881
☆ Paweł            883 124 333


☆ Kontaktując się z nami masz pewność bezpośredniego zakupu domu i dostęp do pełnej informacji o inwestycji



☆ Biuro Sprzedaży Dewelopera zaprasza do zapoznania się z ofertą sprzedaży domów w zabudowie szeregowej w Mosinie w odległości 20 km od Poznania.
Inwestycja składająca się z 79 domów gwarantuje wysoki standard lokali a jednocześnie gwarancje cichej, spokojnej i zielonej okolicy.
W sprzedaży jest ostatni etap lokali o pow. użytkowej 85,58m2
Jeśli oczekujesz spokoju i przestrzeni a jednocześnie dostępu do miejskiej infrastruktury ta oferta jest dla Ciebie
Bardzo blisko szkoła podstawowa, sklep, market, przystanek autobusowy. Do dworca PKP ok 15 min spacerkiem


☆ Media: prąd, woda, kanalizacja, gaz, pompa ciepła do podgrzewania wody, światłowód 
☆ Usytuowanie budynku: salon i taras skierowane na północny zachód

☆ Termin oddania: gotowe
☆ Umowa przedwstępna: 1% wpłaty


☆ CECHY WYRÓŻNIAJĄCE INWESTYCJE:

➔ cicha i spokojna okolica, dużo zieleni
➔ szkoła 200m
➔ przedszkole 400m
➔ najbliższy sklep 250m
➔ przystanek 100m
➔ prężnie rozwijająca się miejscowość (sklepy tesco, biedronka, lidl, netto, mrówka, ryneczek warzywny, przedszkole, szkoła, lekarz, tereny rekreacyjne)
➔ bardzo wysoki standard deweloperski
➔ światłowód INEA
➔ solidny i uznany deweloper, działający od wielu lat na lokalnym rynku, doskonale wpisujący się w aktualne potrzeby rynkowe
➔ w cenie doradztwo kredytowe
➔ utwardzona droga (udziały w drodze)

 
 
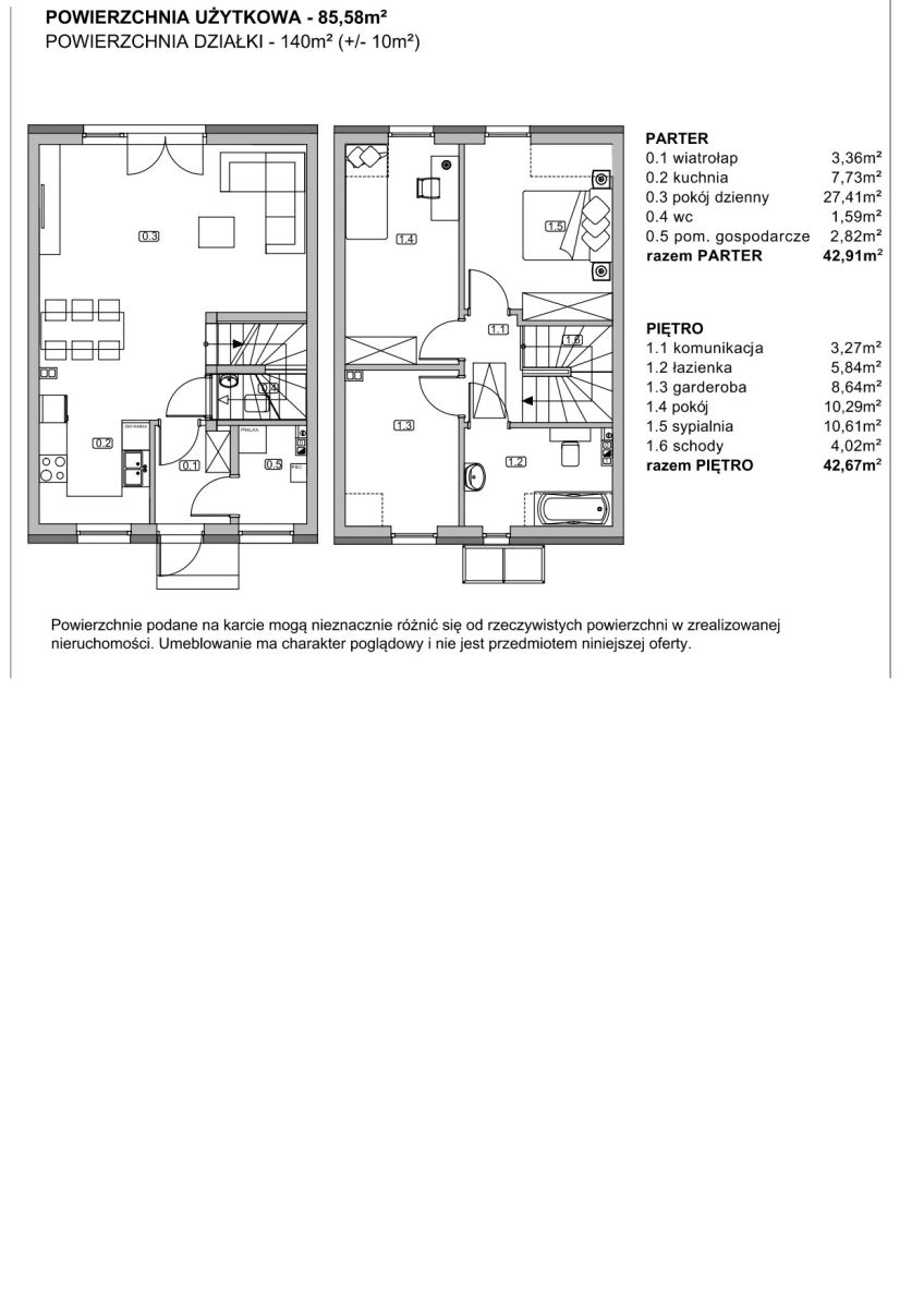
☆ ZESTAWIENIE POMIESZCZEŃ:
budynek A5

PARTER:

➔ wiatrołap 3,36 m2
➔ kuchnia 7,73 m2
➔ salon 27,41 m2
➔ łazienka 1,59 m2
➔ pom gosp 2,82 m2

PIĘTRO:

➔ komunikacja 3,27 m2
➔ łazienka 5,84 m2
➔ pokój 8,64 m2
➔ pokój 10,29 m2
➔ pokój 10,61 m2
➔ schody 4,02 m2

➔ strych 25 m2

 

☆ nabywając naszą inwestycje zyskujesz dodatkowo:


➔ bezpłatną pomoc eksperta kredytowego w uzyskaniu najlepszego finansowania
➔ 10% rabatu na zakupy w Leroy Merlin + architekt wnętrz
➔ do 2000 zł premii na zakupy w OBI + architekt wnętrz
➔ projekt kuchni i łazienki w cenie przy zakupach w Leroy Merlin i OBI
➔ 15% rabatu na farby i efekty dekoracyjne do ścian renomowanych firm
➔ 10% rabatu na drzwi, podłogi i panele renomowanych polskich i zagranicznych firm
➔ możliwość wykończenia domu w atrakcyjnych cenach
➔ pomoc naszego architekta wnętrz w promocyjnych cenach



☆ STANDARD WYKONANIA:

Konstrukcja:
• fundamenty: ławy - żelbetowe monolityczne
• ściany fundamentowe - bloczki betonowe M-6
• konstrukcja nadziemia - ściany z pustaków ceramicznych, silikatóow, stropy - typu Smart
• dach skośny o konstrukcji drewnianej kryty blachą na rąbek stojący
• ścianki działowe z pustaków Silka lub SILIKAT

Wykończenia wewnętrzne:
• wykończenie ścian - tynki gipsowe wykonane maszynowo
• posadzki jastrychowe, zatarte na gładko mechanicznie, na izolacjach cieplnych
• okna PCV trzyszybowe, co najmniej jedno skrzydło w pomieszczeniu rozwierane lub uchylne
• parapety zewnętrzne stalowe powlekane
• rolety zewnętrzne we wszystkich oknach otwierane ręcznie, roleta elektryczna w salonie.
• drzwi zewnętrzne do mieszkań - stalowe, dwie wkładki patentowe antywłamaniowe
• otwory drzwiowe wewnętrzne przygotowane do montażu ościeżnic
• schody żelbetowe, przygotowane pod wykończenie deską drewnianą lub płytką

Instalacje sanitarne:
• centralne ogrzewanie i ciepła woda dostarczane z kotła kondensacyjnego opalanego gazem ziemnym
• sypialnie piętra ogrzewane poprzez grzejniki płytowe. Na parterze oraz w łazience na piętrze ogrzewanie
podłogowe
• instalacja kanalizacyjna z PCV, piony kanalizacyjne obudowane twardym styropianem, otynkowane
• instalacja wewnętrzna wody zimnej i wody ciepłej wykonane w podłodze i w ścianach
• lokal wyposażony będzie w przyłącza (ilość i typ pomieszczeń wg rzutu lokalu załączonego do umowy):
o w kuchni - jedno przyłącze wody zimnej i wody ciepłej i jedno odejście kanalizacyjne do podłączenia
zlewozmywaka, jedno przyłącze wody zimnej do podłączenia zmywarki
o w łazience na piętrze - przyłącze wody zimnej, ciepłej i kanalizacji do podłączenia wanny lub
prysznica; jedno przyłącze wody zimnej, ciepłej i kanalizacji do podłączenia umywalki; jedno przyłącze
wody zimnej i kanalizacji do podłączenia sedesu
o w wc - jedno przyłącze wody zimnej, ciepłej i kanalizacji do podłączenia umywalki; jedno przyłącze
wody zimnej i kanalizacji do podłączenia sedesu
o w pom. gosp. - jedno przyłącze wody zimnej i kanalizacji do podłączenia pralki (zmiana
umiejscowienia pralki wg uzgodnień indywidualnych), rozdzielacz do ogrzewania podłogowego
• indywidualne przyłącza oraz dodatkowe punkty instalacyjne za dopłatą
• instalacje wodne i kanalizacyjne bez osprzętu (bez baterii, zaworów do podłączenia baterii, ceramiki
sanitarnej)
• pobór wody zimnej w mieszkaniu opomiarowany wodomierzem zlokalizowanym w pomieszczeniu
gospodarczym lub przedsionku
• liczniki gazu zużytego w mieszkaniach zlokalizowane w granicy działki lub na elewacji

Instalacje elektryczne:
• lokal mieszkalny wyposażony będzie w :
o przyłącze trójfazowe do podłączenia kuchni elektrycznej / płyty ceramicznej
o przyłącza jednofazowe (gniazda elektryczne i punkty świetlne bez osprzętu)
o instalacja dzwonkowa
o TV/INTERNET w salonie
o okablowanie do systemu alarmowego bez osprzętu
• liczniki energii elektrycznej zużytej w mieszkaniach zlokalizowane w granicy działki
• obwody oświetleniowe i gniazdkowe poprowadzone przewodami miedzianymi

Wykończenia i roboty zewnętrzne:
• elewacja wykonana z tynku cienkowarstwowego na ociepleniu z 18 cm płyt styropianowych według
projektu
• balustrady zewnętrzne stalowe malowane proszkowo
• teren ogródka ogrodzony płotem z siatki powlekanej do wys. 150 cm, między lokalami wys. 90 cm
• podjazdy i dojście do drzwi z kostki typu pozbruk
• podejście wody ogrodowej (wodomierz ogrodowy we własnym zakresie)


powyższy opis ma charakter informacyjny i nie stanowi oferty w rozumieniu przepisów Kodeksu Cywilnego


☆ W ofercie posiadamy również inne inwestycje deweloperskie na terenie Mosiny, Pecnej, Czapur, Krosna, Dymaczewa Nowego/Starego, Borkowic, Stęszewa, Dębna, Komornik, Szreniawy, Lubonia, Plewisk, Wir, Baranowa, Skórzewa, Kobylnik, Rokietnicy, Kiekrza, Dopiewca, Dopiewa, Dąbrówki, Chomęcic, Głuchowa, Konarzewa, Borówca, Szczytnik, Kamionek, Daszewic, Dachowej, Szczepankowa, Siekierek, Paczkowa, Tulcach, Poznania i okolic

Masz własną działkę? Zbudujemy na niej dom Twoich marzeń !!!


Kontakt:
Aleksandra Tomczyk
nr tel.: +48 722 398 881
aleksandra@gekkohouse.pl
http://gekkohouse.pl

Skontaktuj się z agentem :
Aleksandra Tomczyk

Telefon : 722398881

aleksandra@gekkohouse.pl


Lokalizacja: