Dopiewiec, Bajkowa
749 000,00 PLN
Dom (Bliźniak) na sprzedaż , 114,45 m2
6 544,34 PLN /m2
Powierzchnia
114,45 m2
Liczba pokoi
5
Rok budowy
2025

Dane nieruchomości:

Numer oferty: 458352
Powierzchnia: 114,45 m2
Powierzchnia działki: 429 m2
Liczba pokoi: 5
Pięter : 1
Rok budowy: 2025
Cena za m2: 6 544,34 PLN
Cena: 749 000,00 PLN

Opis nieruchomości:

☆ Zakup Bezpośrednio Od Dewelopera
☆ Faktura, Rękojmia 5 lat, Brak Podatku i Prowizji
☆ Możliwość Wykończenia Pod Klucz
☆ Szybka Decyzja Kredytowa u Naszego Doradcy Kredytowego

zapraszam do kontaktu i umówienia się na prezentację


☆ Aleksandra    722 398 881
☆ Paweł             883 124 333


Kontaktując się z nami masz pewność bezpośredniego zakupu domu i dostęp do pełnej informacji o inwestycji


☆ Biuro Sprzedaży Dewelopera zaprasza do zapoznania się z  inwestycją domu w zabudowie dwu-lokalowej w Dopiewcu na granicy z Dopiewo
Dom o powierzchni 114,45 m2 ( powierzchnia użytkowa to 104,80 m2 ) na działce wielkości ok 429 m2.
Domy oddawane w stanie deweloperskim

Lokal Lewy: Wolny
Lokal Prawy: Rezerwacja 


☆ Media: prąd, gaz, szambo '8, woda, światłowód 
 Usytuowanie budynku: salon i taras skierowane na północny zachód

 Umowa przedwstępna: 1%
 Termin oddania: I kwartał 2026


➔ okno tarasowe przesuwne 
➔ podwójna ściana między lokalami
➔ ogrzewanie podłogowe
➔ rolety elektryczne w całym domu


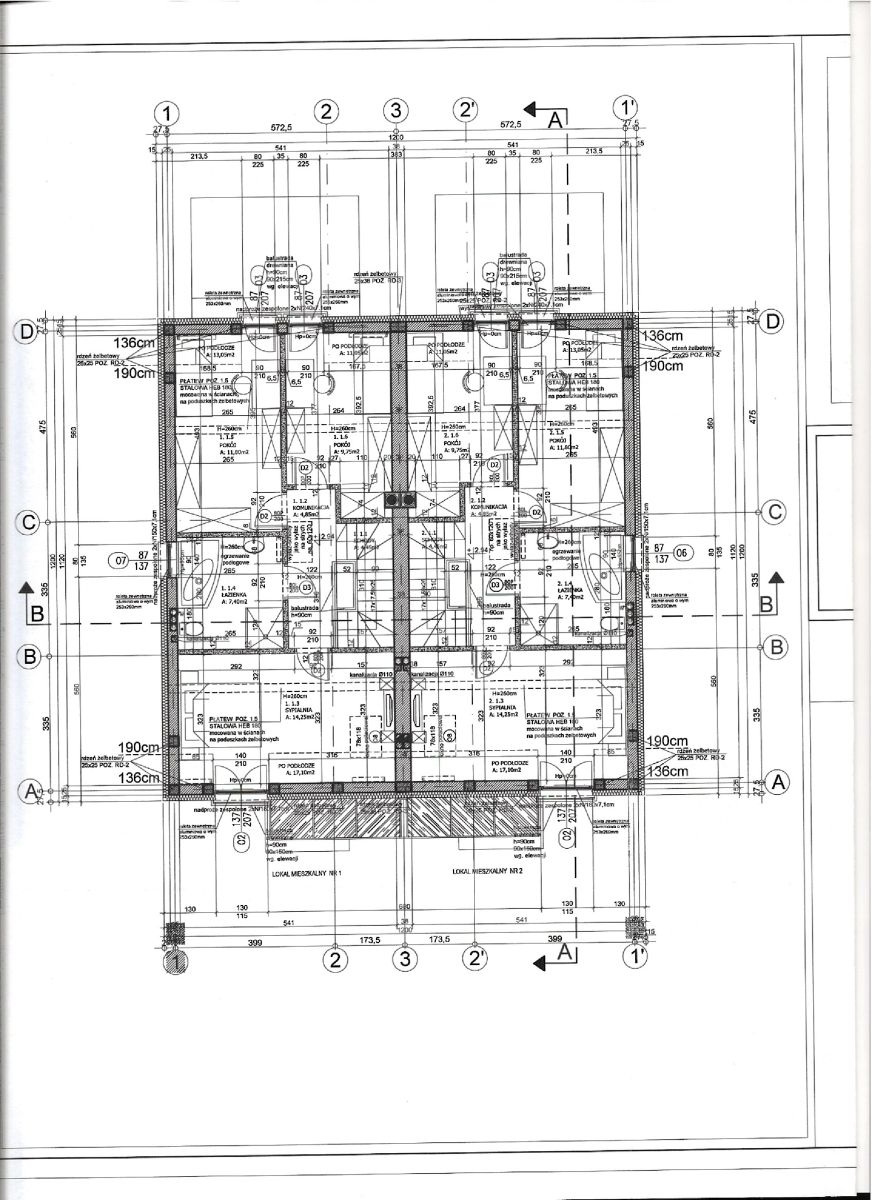
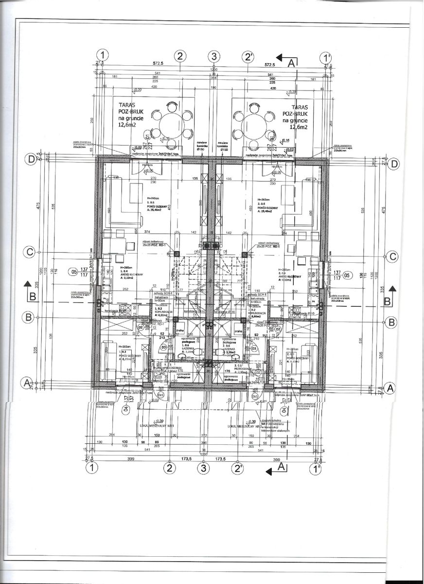
☆ ZESTAWIENIE POMIESZCZEŃ:
budynek B2

PARTER:

➔ wiatrołap             2,90  m2
➔ korytarz               8,80 m2
➔ aneks kuchenny  8,10 m2
➔ salon                   25,40  m2
➔ pokój                   8,15 m2
➔ łazienka               3,20 m2

PIĘTRO:

➔łazienka              7,40 m2
➔ korytarz              4,85 m2
➔ pokój                  17,10 m2 (pow użytkowa 14,25 m2)
➔ pokój                  13,05 m2 (pow użytkowa 11,80 m2)
➔ pokój                   11,05 m2  (pow użytkowa 9,75 m2)
➔ schody                4,45 m2



☆ WIĘCEJ OFERT NA NASZEJ STRONIE gekkohouse.pl


☆ nabywając naszą inwestycje zyskujesz dodatkowo:

➔ bezpłatną pomoc eksperta kredytowego w uzyskaniu najlepszego finansowania
➔ 10% rabatu na zakupy w Leroy Merlin + architekt wnętrz
➔ do 2000 zł premii na zakupy w OBI + architekt wnętrz
➔ projekt kuchni i łazienki w cenie przy zakupach w Leroy Merlin i OBI
➔ 15% rabatu na farby i efekty dekoracyjne do ścian renomowanych firm
➔ 10% rabatu na drzwi, podłogi i panele renomowanych polskich i zagranicznych firm
➔ możliwość wykończenia domu w atrakcyjnych cenach
➔ pomoc naszego architekta wnętrz w promocyjnych cenach


☆ STANDARD WYKONANIA:

1.KONSTRUKCJA:

- Fundament - ławy żelbetowe
- Ściany fundamentowe - bloczki betonowe M6
- Ściany zewnętrzne - ceramika porotherm gr .24 cm
- Ściany wewnętrzne - ceramika
- Ocieplenie - styropian gr. 20 cm z tynkiem
- Dach - konstrukcja drewniana - więźba dachowa
- dachówka betonowa Brass
- podbitka drewniana
- rynny PCV
- strop ocieplony wełną mineralną gr. 30 cm
- płyta G-K podwieszona bez szpachlowania
- Wentylacja - kształtka wentylacyjna
- Ściana środkowa (dzieląca budynek) podwójna + styropian 2cm

2. IZOLACJA:

- Pionowa - 2 x ABIZOL
- Pozioma - papa termozgrzewalna
- Pomieszczeń - folia izolacyjna z wywinięciem na ściany

3. WYKOŃCZENIE WNĘTRZA:

- Stolarka okienna
- okna PCV, trzyszybowe,szesciokomorowe, strona wewnętrzna koloru białego,
strona zewnętrzna antracyt.
- Rolety zewnętrzne.
- Drzwi - wejściowe ocieplone, drewniane - kolor antracyt.
- Schody - betonowe
- Posadzki - betonowe
- Tynki - gipsowe maszynowe
- schody na „stryszek” -drewniane „ściągane-sufitowe”

4. ROBOTY ZEWNĘTRZNE:

- Opłotowanie - boki - siatka, front - furtka, brama - panel metalowy.
- Wyrównanie terenu z zastanego materiału.
- Parapety zewnętrzne - stalowe,
- Dojście do domu kostka brukowa grafit

5. INSTALACJE:

- Instalacje elektryczne
- przyłącze prądu trójfazowego
- rozdzielnia z licznikiem
- kuchnia - oświetlenie sieciowe bez osprzętu, siła, przygotowany prąd pod
pochłaniacz, przygotowana siła;
- pokoje - oświetlenie sieciowe, instalacja antenowa bez osprzętu
- łazienka - oświetlenie sieciowe bez osprzętu
- kabel do instalacji domofonowej
- Instalacja WOD.-KAN.
- zasilanie w wodę z sieci - licznik
- instalacja kanalizacyjna - pcv, przygotowane punkty bez przyborów-
- instalacja wodna (ciepła i zimna) - wykonana z rur PCV, rozprowadzona w domu, przygotowane punkty bez przyborów
- instalacja wodna na zewnątrz (OGRODOWA
- Instalacja CO
- ogrzewanie podłogowe w całym domu
- rozprowadzenie instalacji w domu
- podejście CO ze ściany



powyższy opis ma charakter informacyjny i nie stanowi oferty w rozumieniu przepisów Kodeksu Cywilnego


☆ W ofercie posiadamy również inne inwestycje deweloperskie na terenie Mosiny, Pecnej, Czapur, Krosna, Dymaczewa Nowego/Starego, Borkowic, Stęszewa, Dębna, Komornik, Szreniawy, Lubonia, Plewisk, Wir, Baranowa, Skórzewa, Kobylnik, Rokietnicy, Kiekrza, Dopiewca, Dopiewa, Dąbrówki, Chomęcic, Głuchowa, Konarzewa, Borówca, Szczytnik, Kamionek, Daszewic, Dachowej, Szczepankowa, Siekierek, Paczkowa, Tulcach, Poznania i okolic

Masz własną działkę? Zbudujemy na niej dom Twoich marzeń !!!


Kontakt:
Aleksandra Tomczyk
nr tel.: +48 722 398 881
aleksandra@gekkohouse.pl
http://gekkohouse.pl

Skontaktuj się z agentem :
Aleksandra Tomczyk

Telefon : 722398881

aleksandra@gekkohouse.pl


Lokalizacja: